ARCHITEKTUR





Wohnhaus in Egelsbach

 
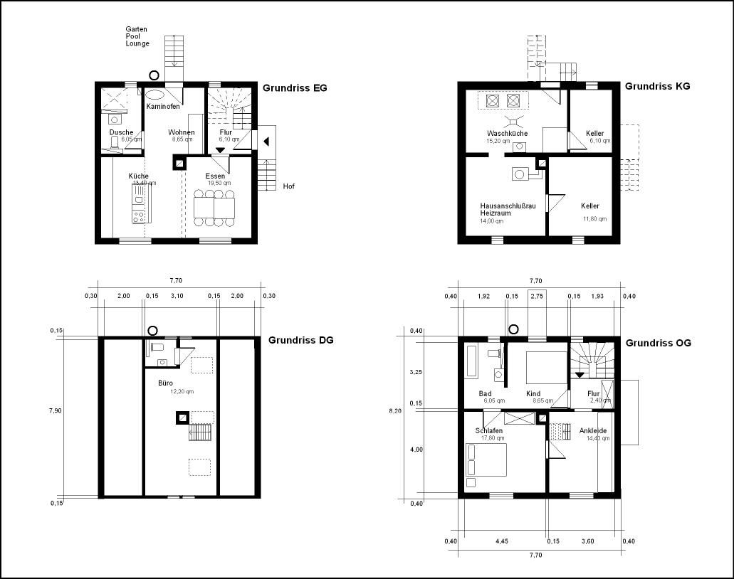
Für einen privaten Bauherrn wurde der Umbau eines Einfamilienhauses und die Gestaltung der Außenanlagen realisiert. 
Wichtig war, das 100 Jahre alte Gebäude von den Spuren jahrzehntelanger Renovierungen zu "befreien" und behutsam in die alte Bausubstanz einzugreifen. Transparenz und die Verwendung ausschließlich ökologischer Materialien sorgen für ein modernes, zeitgemäßes Raumgefühl. 

Auftraggeber Privat 

Mobirise
Mobirise
Mobirise
Mobirise
Mobirise
Mobirise
Mobirise
Mobirise
Mobirise
Mobirise

weitere Projekte

Mobirise

Create a free website - Click here